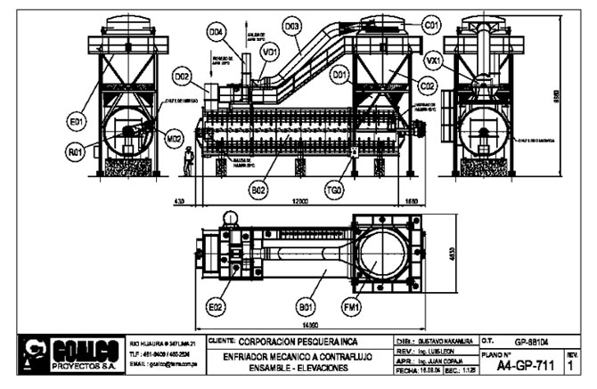
Enfriadores de harina a contraflujo estáticos


<< Regresar


 

Pedro Benvenuto 458 San Miguel, Lima 32- Perú
Teléfonos / Fax: (51-1) 566-3939 / 566-3949 / 835*2619
E-mail: proyectos@goalco.com.pe