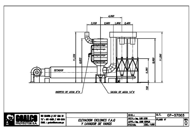
Lavador de vahos y gases



<< Regresar

 

Pedro Benvenuto 4 58 San Miguel, Lima 32- Perú
Teléfonos / Fax: (51-1) 566-3939 / 566-3949 / 835*2619
E-mail: proyectos@goalco.com.pe